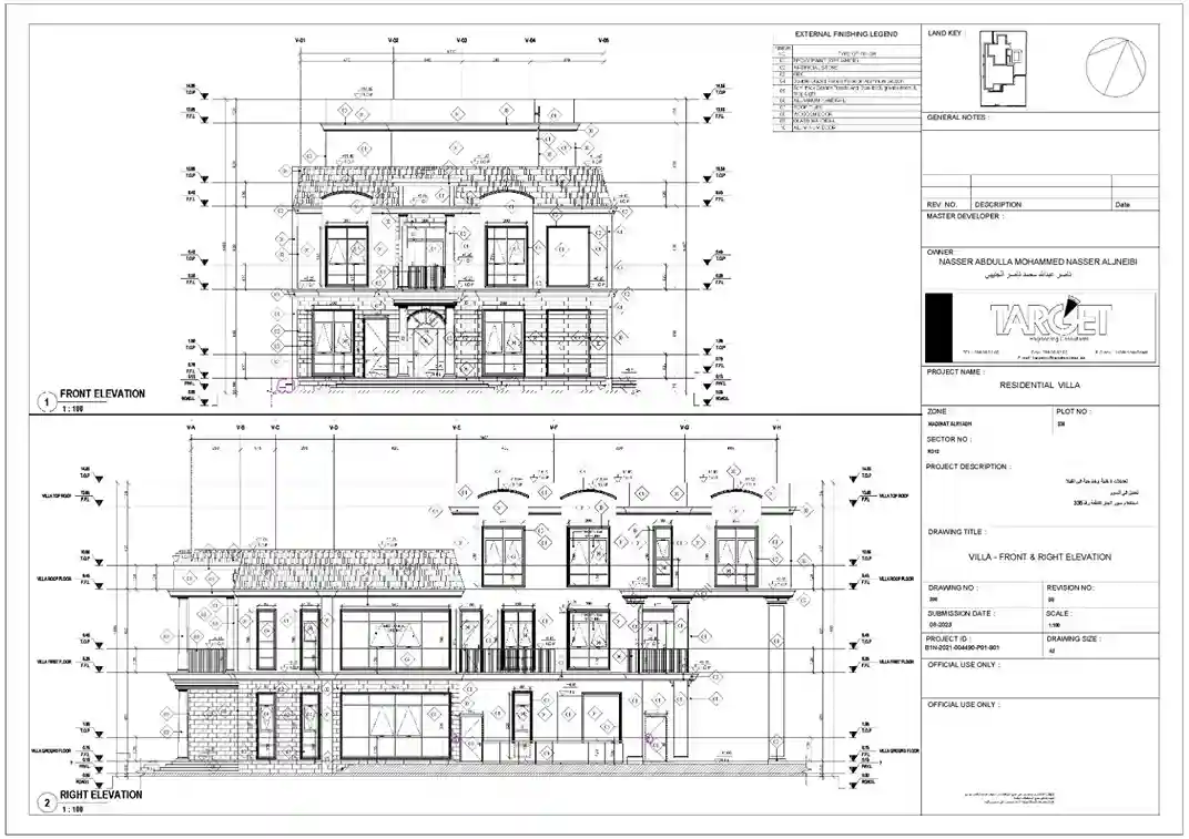
Zone : Madinat Al Riyad

Project Details
Permit Information
  • Project Number: B1N-2021-004490
  • Project Name: Residential villa
  • Permit Number: B1N-2021-004490-P01
  • First Issue Date:
Parcel Information
  • Zone: Madinat Al Riyad
  • Sector: RD12
  • Plot Number:: 336
  • Land Use:
  • Plot Area(m2): 1069.97
Consultant and Contractor Information
    Designer and Supervisor: TARGET ENGINEERING CONSULTANT - SOLE PROPRIETORSHIP L.L.C.
  • Contractor: KARYANI HOUSE CONTRACTING & GENERAL MAINTENANCE L.L.C.
Villa Description

Explore a newly constructed residential villa in Madinat Al Riyad, Abu Dhabi. Built on a 1,069.97 m² plot, this luxurious villa blends modern design with functional elegance. The project, executed by Karyani House Contracting & General Maintenance LLC, features a private swimming pool, an attached service block, and a stylish bathroom facility. Approved by the local municipality, the villa adheres to the highest standards of quality and compliance. Ideal for luxurious living in the heart of Abu Dhabi.

Architect Plans
Villa Video
image
Location

0 Reviews

Add Review

Your rating for this listing